日子緩緩流動,真正動人的,往往是那些微小而溫柔的瞬間。陽光灑進屋內,木質紋理在地面上投下柔和的光影,時間在其中悄然流轉。在這座城市的一隅,「木色拾光」是一處為三人與毛孩打造的避風港,讓身心在自然中被撫慰。以光為筆、以木為紙,每一幕生活,都像是被精心收藏的詩句,溫暖而真實,靜靜在此醞釀家的模樣。
在這篇作品開箱中,我們將帶你細細品味北歐日式風,給也規劃北歐風的你,能找到一些設計靈感與實現夢想空間的關鍵元素!
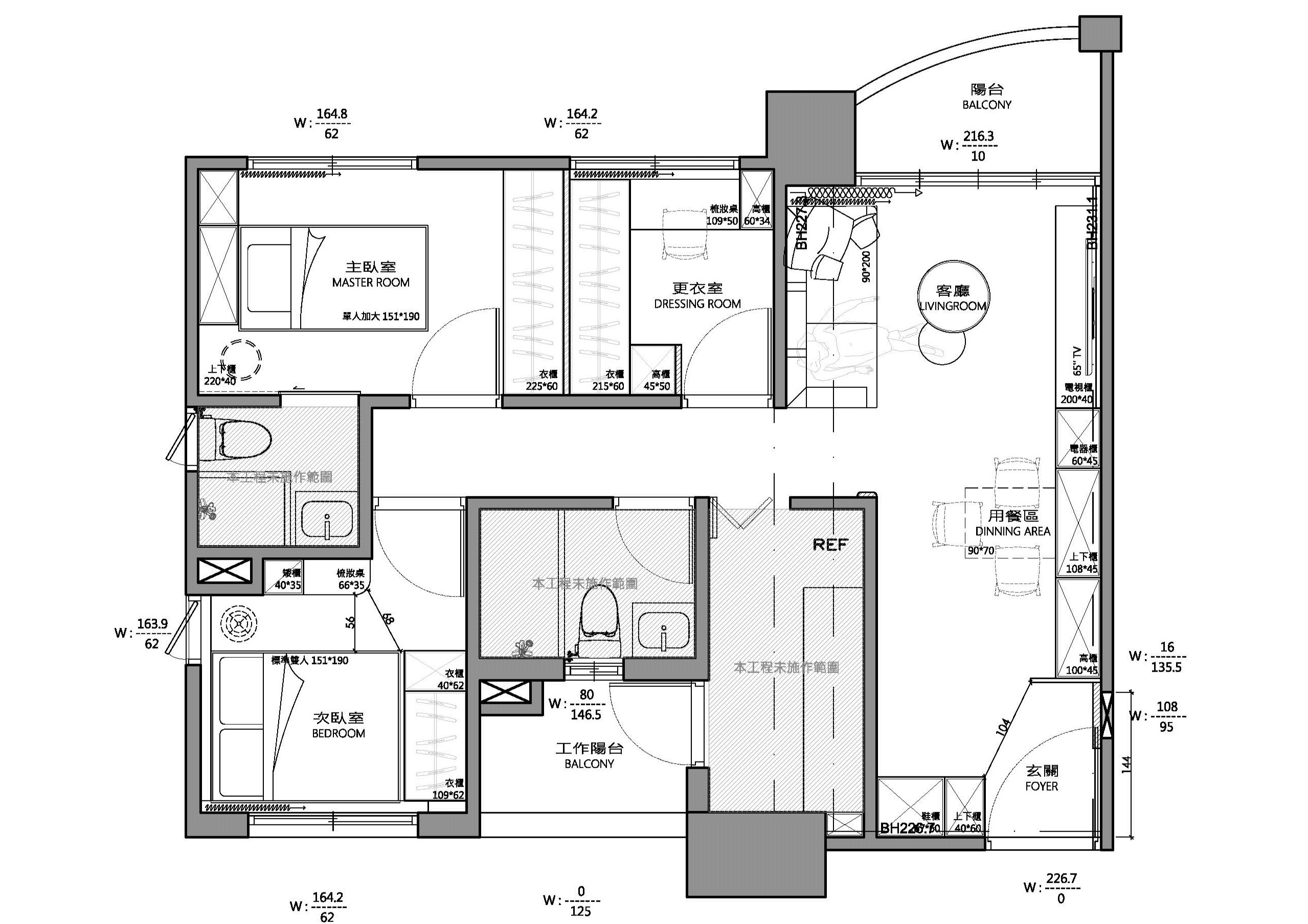
本次專案為一對夫妻與年長的媽媽,以及一隻性格溫馴的博美犬,希望擁有一處寧靜、簡單、舒適的生活空間。屋主喜歡北歐風的明亮與溫潤,也傾心日式木質調的自然與質感。在這間2+1房、兩廳兩衛的格局中,我們與屋主攜手,開啟了一場關於光與家的對話,打造一處真正能夠回歸生活本質的空間設計。
我們選擇屋主喜愛的淺木色系作為空間基調,柔和了現代都市常見的冷調與壓迫感;透過大面積引入自然光,搭配簡潔純粹的線條語彙,讓整體氛圍在清新與溫潤之間取得平衡。不只重視視覺美感,更將生活動線、長輩使用的安全性與寵物活動便利性一併納入設計考量。
北歐風的設計語言
風格設定延續屋主喜愛的北歐清新感與日系靜謐感交錯,融入以下四大項細緻設計:
1. 自然淺木與留白比例:
地板、收納櫃體與傢俱色調選用相近木色,使整體空間設計有一致的調性,搭配留白牆面,避免視覺壓迫,營造一致而柔和的空間調性,彼此呼應,使讓視覺層次自然延展。搭配適當比例的留白牆面,讓每個設計與陳設都有呼吸的空間,符合北歐日式風格中的「靜」與「簡」。
2.導入自然光影:
客廳配置大面落地窗,引入自然陽光,讓每個時刻的光影都為空間裝飾不同氛圍,隨著一天光影變化,牆面與木質產生溫潤層次,如同生活節奏的寫照。我們保留光線進入的純粹性,讓白天無需過多燈光,就能感受到自然帶來的溫柔陪伴。
3.收納設計貼合日常需求:
考量屋主一家三口加上一隻可愛的博美犬,我們在玄關、客廳與臥室規劃足夠且整合的收納空間設計。特別是客廳整排電視牆櫃體,不僅提升機能性,更與整體風格無縫融合。每一處櫃體都依動線與使用習慣量身訂做,讓整潔成為日常,而非壓力。
4. 功能與情感兼具的家具選搭:
設計不只是美觀,更要貼近生活的實用與安全。考量家中有長者與毛孩,我們於家具與櫃體設計中導入圓弧角收邊,降低撞擊風險,也使視覺更柔和。從茶几、邊櫃到牆角設計,每一處細節都傳遞我們對家的溫柔理解與關照。
在施工階段,我們始終秉持對品質的高標準與細節的堅持。每一道工序,不只是「完成工程」,而是在為屋主的日常鋪陳安心與舒適。
我們從選材開始就以實用與美觀並重為原則:地面使用防滑、好清潔的木紋耐磨地板,是考量長輩活動與毛孩奔跑安全的基礎。貼心的是,師傅在施工現場也會不時調整小細節,只為呈現最合適的空間比例。
主臥的高窗設計,則是在保持隱私的同時導光入室,牆面亦同步強化隔音,讓屋主在這個私密場域裡真正放鬆。
在書房空間的彈性機能,我們選用系統櫃與靈活隔間設計,讓這裡能隨著生活變化靈活運用,是閱讀、工作的完美載體。
從木工收邊、系統櫃體製作、油漆塗刷到完工清潔,每一階段皆由我們禾境團隊親自監工,搭配長年配合的專業師傅團隊,確保交付的不只是空間設計,而是一份情感的承諾。
完工照
客廳:屋主喜歡明亮放鬆的北歐日式風氛圍,因此客廳以大面落地窗引光入室,搭配淺灰布沙發作為視覺重心,呈現柔和又穩定的畫面感。低彩大理石紋茶几與輕盈吊燈為空間添上層次感,適合家人放鬆、互動,也是毛孩最喜歡的奔跑天地。
餐廚區:封閉式廚房是有明確區隔牆面的獨立設計,避免油煙擴散。餐廳區與客廳開放連接,以一張溫潤木餐桌作為家庭互動中心。三人圍坐共享每一餐的溫度,也是空間情感交流的核心據點。
主臥:主臥室強調靜謐與私密感,延續整體的柔和木色調與簡約語彙。窗邊設置化妝桌,讓女主人能在晨光中開始一天,也成為專屬於她的片刻時光。床頭與櫃體色彩搭配自然柔和,是放鬆身心的理想空間。
書房:屋主喜歡閱讀與偶爾居家辦公,因此書房設計以實用為本,安排整面系統收納櫃並保有空間彈性,可隨需求調整為多功能室。自然光線、沉靜配色與整齊收納三者合一,創造一個能沉浸式思考也能靈活轉換的空間設計。
空間小檔案
風格|北歐風
坪數|18坪
格局|2+1房1廳1衛
屋況|新成屋
3D圖
木色拾光,是屬於這個家的記憶容器,光線柔和地照進窗內,映在木質紋理上,不需要過多言語,家的溫度就悄然流轉在每一個角落。
我們希望屋主不只是「住進新家」,而是真正感受到: 生活可以被溫柔地對待,空間能夠陪伴彼此走過日常的所有片刻。
你也渴望一個溫馨質感的家嗎? ➜ 【禾境設計需求單】
禾境是保護你的設計師,我們保護你3件事情:
.保護你的預算,幫你的每一分錢發揮到最大的效益
.保護你的夢想,我們在乎你、懂你,陪你一起實現夢想的家
.保護你的結果,重視品質與專業團隊,讓結果超乎你的期待







