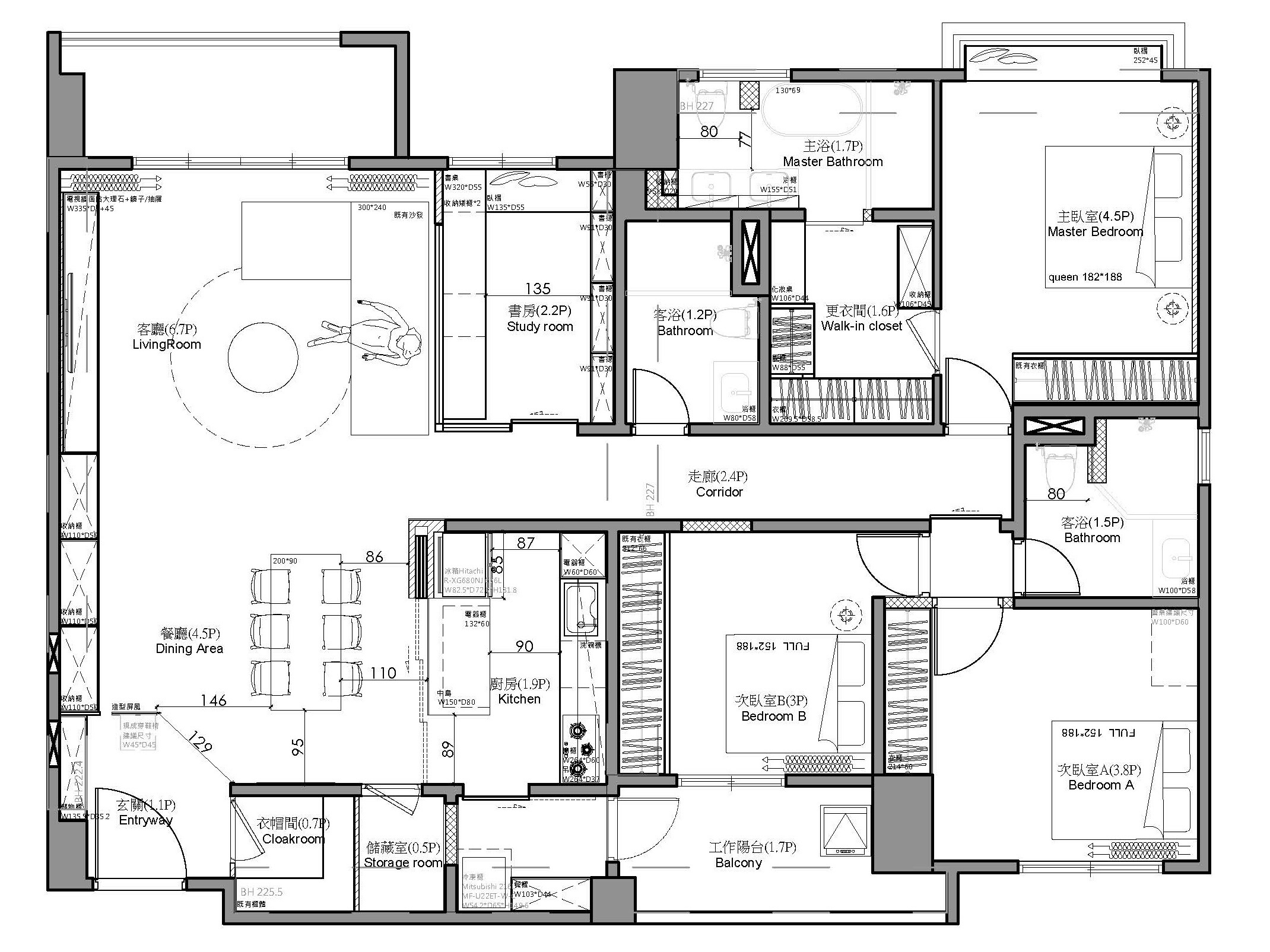
家的樣子,從來不只是風格,而是生活的延伸。本案為40坪三房兩廳三衛住宅,在保留原有格局的前提下,我們針對動線與使用習慣進行調整,讓空間回到更貼近屋主生活的動線。
整體以「現代輕奢」為設計主軸,透過石材、木質與柔霧灰色的搭配,在理性與感性之間取得平衡。屋主喜歡石材的俐落質感,卻不希望空間顯得冷冽,因此我們透過材質比例與色溫的控制,讓空間在低調中保有溫度,在簡約中堆疊層次。在這個空間裡,光不只是照明,而是連結空間情緒的重要元素。
設計理念
在這個案子中,我們沒有透過明確的隔間去區分空間,而是以「色調、光的溫度與地材選擇」,作為界定公私領域的主要設計語言。
公領域(客廳、餐廳、書房與廚房)以中性偏明亮的色調為主,搭配石材紋理與磁磚地坪,營造出開闊、俐落且具有社交性的空間氛圍。而進入私領域(臥室與更衣室),整體語彙則轉為更加溫潤與柔和。地面改以木地板鋪陳,搭配暖色木質與低彩度牆面,使腳感與視覺同步轉換,讓空間自然沉靜下來。
這樣的設計,不只是材質的變化,更是一種生活狀態的切換,從開放的交流場域,回到專屬於自己的放鬆空間。
現代輕奢宅的客廳設計
客廳作為整體空間的核心,我們將原本較為強烈的天花界線簡化,改為平整天花搭配隱性燈光設計,讓視覺更加乾淨俐落。電視主牆以大面積石材呈現,成為空間的主要視覺焦點,同時建立現代輕奢的基調。
為了平衡石材帶來的冷冽感,我們透過木質櫃體與柔和織品進行調和,使空間在剛與柔之間取得平衡。大面採光讓自然光隨時間流動,為空間增添層次,也讓生活更有節奏。
現代輕奢宅的餐廳設計
餐廳與客廳採開放式規劃,透過天花材質的轉換,自然區分空間屬性。餐廳上方選用暖色木皮,使空間在視覺上形成聚焦,同時營造出溫暖且具有儀式感的用餐氛圍。餐桌以石紋搭配金屬細節,延續整體輕奢語彙,而展示櫃結合玻璃與燈光設計,使收納同時成為空間的一部分。
現代輕奢宅的開放式廚房設計
廚房採開放式設計,讓料理成為家庭互動的一部分。在日常情境中,可以一邊備餐、一邊與家人交流,讓空間更具連結感。同時,透過玻璃拉門的設計,讓空間具備彈性,需要時可阻隔油煙,不使用時則維持開放通透。櫥櫃以低彩度霧面材質呈現,使整體視覺乾淨且與公領域風格一致。
現代輕奢宅的書房設計
書房以半開放式玻璃隔間呈現,既保留獨立使用的機能,也維持空間的通透感。透過玻璃材質,自然光可以自由流動,使書房不顯壓迫,更適合長時間使用,這樣的設計讓工作與生活之間,不是被切割,而是自然過渡。
現代輕奢宅的臥室設計
延續整體空間的色調策略,私領域轉向更加內斂與柔和。臥室以低彩度與暖色系為主,搭配木質元素與間接照明,使空間氛圍更加沉靜。設計上刻意減少過多裝飾,透過留白與比例控制,讓空間回歸純粹,提升休息品質。
現代輕奢宅的更衣室設計
更衣室保留原有裝潢,透過整體色調與光源的延續,使其自然融入私領域氛圍。相較於公領域的明亮感,更衣室的光線轉為柔和,使空間更貼近日常使用情境。搭配木地板與溫潤色系,讓空間在收納之外,也成為生活節奏的轉換點。
在《琥光漫敘》這個案子中,我們不追求過度的造型,而是透過材質、光影與動線的整合,讓每一個空間都回應實際的生活需求。以下為各空間的設計規劃重點整理:
1.客廳|建立空間主軸與質感核心
以石材電視牆作為視覺焦點,搭配平整天花與隱性照明,讓整體空間呈現簡潔俐落的現代感。透過木質與軟裝元素的加入,平衡石材的冷調,使空間更具溫度與層次。
2.餐廳|用材質轉換界定生活場域
透過木質天花的變化,自然區分客餐廳空間,無需隔間也能清楚界定使用場域。石材與金屬細節延續整體風格,並結合展示櫃設計,提升生活的儀式感。
3.開放式廚房|兼顧互動與機能彈性
採開放式設計,強化家人之間的互動連結,同時透過玻璃拉門設計,保留阻隔油煙的機能彈性。整體色調與公領域一致,使空間視覺更加整合。
4.書房|維持通透,同時保有專注
以半開放式玻璃隔間規劃,讓空間在開放與獨立之間取得平衡。保留採光與視覺延伸,使書房不顯壓迫,提升使用舒適度。
5.臥室|降低干擾,回歸放鬆本質
以低彩度與暖色系為主,搭配木地板與間接照明,營造安定、舒適的休息環境。透過減法設計,讓空間回歸純粹,提升生活品質。
6.更衣室|延續私領域的溫潤節奏
保留原有裝潢,透過色溫與材質延續私領域氛圍,使空間自然銜接。
真正的輕奢,不是堆砌,而是一種剛剛好的平衡。在這個空間裡,我們透過材質、光影與比例,讓生活自然展開。從磁磚到木地板,從明亮到溫潤,空間不只是被設計,而是被感受。當你走進這裡,會發現家的樣子,其實很簡單。
有任何裝潢需求需要諮詢,也歡迎填表與我們聯絡喔 ➜ 【禾境設計需求單】
禾境是保護你的設計師,我們保護你3件事情:
.保護你的預算,幫你的每一分錢發揮到最大的效益
.保護你的夢想,我們在乎你、懂你,陪你一起實現夢想的家
.保護你的結果,重視品質與專業團隊,讓結果超乎你的期待







